楼凤大修车队论坛,风楼阁全国信息app游戏介绍,一品香论坛,品行堂永远免费论坛

游乐设备厂家-室内乐园品牌加盟一站式服务

成功案例

浙江丽水极酷运动工场—口袋屋室内运动乐园设计建造案例

发布时间:阅读数量:1434

极酷运动工场拥有适合不同年龄段的各种游乐项目,是一个集体育运动、娱乐、科技、潮流文化于一体的潮玩运动馆。满足你运动启蒙、娱乐成长、运动健身、社交需求潮流体验等各类需求。运动工场总面积3000㎡,在这里,你可以用潮流的感受力和创造力去体验自由的释放,带来沉浸式感官体验。


一、项目背景

丽水未来城作为丽水南城超体量全概念新生活地标,围绕“年轻、欢乐、品质”等关键词,集合体验、运动、儿童等优质业态,致力于打造以丽水首店、强体验、夜经济为核心的全业态潮玩乐活中心。



二、项目从设计到落地

场地层高6米-7.3米,面积3000平米也足够大,商城的3楼已经有一家儿童乐园入住,依据周边调研情况分析,这空间适合做室内运动乐园,客群年龄定位5岁以上。在设备选型上,我们遵信三个原则:

①选择有运动属性的的设备,具有挑战性,并可从易到难进阶;

②高空项目具备惊险刺激,但是体验过程和着陆必须足够安全;

③可单人互动又能团队PK,保证设备游玩的趣味性。


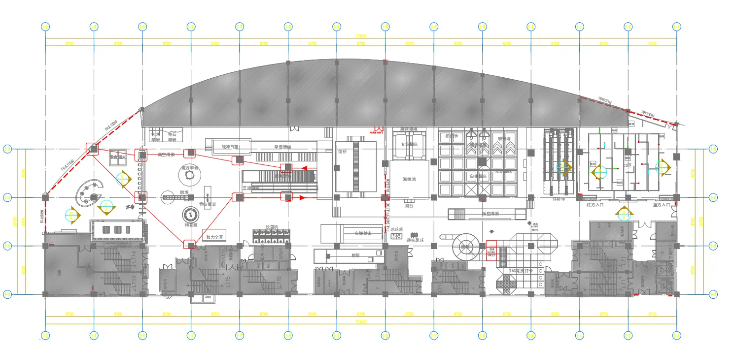
【整馆规划】

丽水极酷运动工场项目规划图


【动线图】



丽水极酷运动工场项目动线图


【设备+环境效果】

丽水极酷运动工场项目设计效果图

汇聚了超30种运动项目,从趣味攀岩到空中拓展,从缤纷滑梯到射击射箭,从TAG竞技打卡到CS战神联盟,每一项都让人热血沸腾,尽享运动的无限魅力。


【项目施工】

极酷运动工场项目采用EPC模式,从商业策划/规划设计/品牌VIS设计/环境装修施工/设备制造安装,到最后的运营维保全链路一站式服务实现“交钥匙”工程,让投资人省心又省力!从确定订单到环境装修,再从运动游乐设备安装完成到运营驻店手把手并交付,总时长70天。项目经理全程现场监工,遵循游乐安全标准,确保设备品质和游玩安全,并如期交付。

丽水极酷运动工场项目安装施工过程

丽水极酷运动工场项目安装完工图


三、极酷运动工场项目介绍

大型抓零食机
门口可见一个大型抓零食机,是绝佳的小朋友诱捕器!
高空挑战区:攀岩、滑梯、跳塔
在入口处一眼就能看到高空攀岩、90度的缤纷滑梯,抬头还有拉满绳索的高空项目,看着就很刺激,玩一次还不够过瘾!
高空探险区:攀岩、梅花桩、空中自行车
在入口处一眼就能看到高空攀岩、90度的缤纷滑梯,抬头还有拉满绳索的高空项目,看着就很刺激,玩一次还不够过瘾!
滑梯组合:魔鬼滑梯/三道急速滑梯
滑梯组合:魔鬼滑梯/三道急速滑梯
急速旱雪滑梯
急速旱雪滑梯
荡桥海绵池团队竞技
荡桥区巨大海绵池,可以肆意在里面翻滚撒欢,躺进去就能被软软的海绵块包裹,十分解压
荡桥海绵池双人battle
荡桥区巨大海绵池,可以肆意在里面翻滚撒欢,躺进去就能被软软的海绵块包裹,十分解压
专业蹦床
专业蹦床
蜘蛛人、拍拍乐、灌篮和互动蹦床
蹦床区除专业蹦床之后包含了还有蜘蛛人、拍拍乐、灌篮和互动蹦床
蜘蛛人、拍拍乐、灌篮和互动蹦床
蹦床区除专业蹦床之后包含了还有蜘蛛人、拍拍乐、灌篮和互动蹦床
数字运动设备投篮机
数字运动设备投篮机
休闲娱乐—冰球桌
休闲娱乐—冰球桌
Mini保龄球
Mini保龄球
实弹射击+射箭
实弹射击+射箭
舞力全开
舞力全开:数字运动区超适合多人组队一起玩儿,射击射箭、舞蹈battle、篮球机,沉浸畅玩一整天
竞技打卡
竞技打卡:成功通过闯关的玩家可以得到一个扭蛋盲盒,低空滑索是每个玩家尤其是儿童必玩的项目。
CS战神联盟
在黑暗中和队友互相配合,掩护得分,你就是场上的最佳MVP!
真人CS游戏
CS战神联盟更是每位顾客的必刷项目,每到周末必排队!


游客体验高空项目


关于口袋屋

口袋屋官方社媒平台

口袋屋作为国内知名的运动乐园设备厂家和室内乐加盟品牌,专注于一站式商业乐园建造服务,目前口袋屋已在全球建造超1000+场馆案例,拥有丰富的场馆规划设计,设备生产制造、场馆装修及安装交付、场馆运营管理的实战经验??诖荼?quot;为客户场馆盈利"的商业逻辑,用“省心省力一站式"的服务准则,为客户的商业乐园盈利提供最快捷高效的服务,如果您想了解更多关于我们的信息,可以扫描图中二维码,期待与您相遇。

留言

如果您有任何关于本产品的信息咨询,请随时与我们联系或填写下面的表单并提交。我们的销售代表将在24小时内与 您联系。感谢您对我们的产品感兴趣。

    导航
    产品定制
    联系我们
    返回顶部