沈阳中街吾悦爱尚Pokiddo运动城4000平——口袋屋运动工场联营店
爱尚Pokiddo运动城是一家集合运动娱乐、亲子游乐、体育竞技、互动科技、团建轰趴、网红打卡为一体的全年龄段社交娱乐游玩空间。
运动城总体规划面积4000平,是一个安全有趣的全民玩乐空间,给孩子提供亲子运动游乐场景,为年轻人打造娱乐社交空间,爱尚Pokiddo运动城以蹦床为依托,运动和游乐相结合、科技和竞技相碰撞,给玩家沉浸式的游玩感受。

一、爱尚Pokiddo运动城项目背景
爱尚运动创始人周总是国内知名头部蹦床公园创始人,他在室内乐园行业积累了丰富的经验与成就。在2023年的广州游乐展上,周总与口袋屋创始人王永宝一见如故,在沟通探讨乐园经营和行业发展的过程中,发现双方有着许多相同的理念,并且达成了品牌联营的共识。于是在沈阳,爱尚和口袋屋合作开设了第一家联营店,充分发挥两家品牌的优势,为顾客提供更加综合和多样化的室内乐园体验。通过这样的合作,爱尚和口袋屋也期望能够为沈阳的大朋友小朋友带来更多的娱乐和运动选择。
二、爱尚Pokiddo运动城从设计到施工落地
【场馆定位】

集运动娱乐、亲子游乐、体育竞技、互动科技、团建轰趴、网红打卡为一体的全年龄段社交娱乐游玩空间。以蹦床为依托的运动和娱乐相结合、科技和竞技相碰撞的运动娱乐区,是一个适合全年龄段人群的可运动、可竞技、可探险、可娱乐、可解压、可玩、可享、可聚会的运动娱乐标杆!
【整案设计】

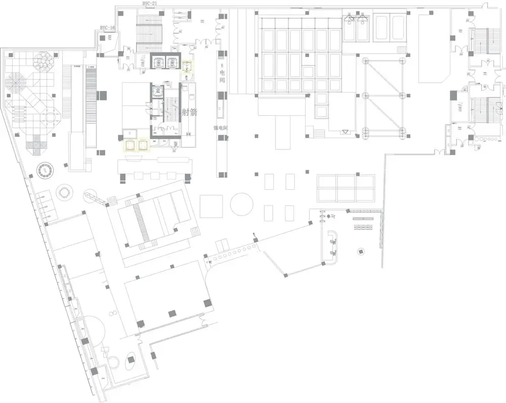
▲场馆平面规划图
爱尚Pokiddo运动城涵盖了相当刺激的尖叫滑梯、攀岩及高空探险相结合的高空探险挑战区,经典蹦床相关的蹦床运动区,酷潮炫的TAG竞技打卡区和数字互动运动区。
【效果图+环境设计】

▲场馆效果图展示

▲场馆环境设计展示
运动娱乐区的整体色彩设计以橙、紫、蓝三色搭配,是运动活力的代表色,以“运动”理念为核心,提倡健康生活,利用鲜明活泼的色彩和墙面贴图,营造浓厚的运动氛围,又不失阳光、时尚、有趣。入馆的第一感觉就让人仿佛来到了一个充满阳光的操场赛道,与活力四射的阳光少年们一起肆意奔跑!
【工程施工】

从口袋屋施工团队入场到项目完工,一共经历了30天,安装过程期间设备安装团队、工程施工团队和环境装修团队同时进行或错开施工,每日按任务计划高效推进,确保项目如期按时开业??诖莨こ唐分释哦尤滔殖〖喙?,遵循行业安全标准,逐一复尺核对每一处设备安装细节问题,工程交付验收也是经过严格的检查。
三、爱尚Pokiddo运动城游玩项目介绍

▲艺术攀岩

▲蜘蛛墙

▲专业蹦床

▲自由蹦床

▲保龄球

▲蹦床灌篮

▲电玩区

▲对抗木

▲高空拓展

▲勇气跳塔

▲格子大战

▲旱雪滑梯

▲互动保龄球

▲幻影VR

▲魔方攀岩

▲魔鬼滑梯

▲牵引滑梯

▲忍者闯关

▲射箭

▲娃娃机

▲荡桥对抗

▲全民大舞台
四、口袋屋简介
温州口袋屋游乐玩具有限公司是国内知名运动、探险乐园智造商,总部位于温州。口袋屋专注于室内运动乐园和户外探险乐园加盟(设计、建造、运营)整体解决方案??诖菁嵝拧盎盍κ峭娉隼吹模 钡睦砟?,针对不同的物业条件和不同的顾客群体, 我们建造了活力空间、蹦床公园、运动工场、魔力空间、垂直公园、考拉丛林、城市魔方等多个乐园场景类型。

口袋屋游乐旗下有:
品牌事业部:负责加盟场馆空间环境和平面视觉设计;
软件事业部:负责乐园场馆收银系统的开发、提升和实施;
运营事业部:负责加盟店培训辅导、开业策划、运营支持;
招商服务事业部:负责全球范围招募加盟商;
产品事业部:负责场地设施设备规划设计、制造、安装。
五大事业部密切协同,提供一站式管家服务,有效的帮助加盟商轻松开店回报丰厚。



