四川雅安口袋屋x熊猫运动梦工场—口袋屋品牌合作联名案例
一、项目案例概况
项目名称:口袋屋x熊猫运动梦工场
项目地址:四川省雅安市女娲广场绿岛艺术中心
项目面积:2960㎡
项目层高:单层层高4.5m,局部挑空区域层高为13.5m
二、项目背景

女娲广场坐落于雨城区清风路以北、绿岛路以东,作为雅安地标级城市会客厅,总投资约 1.36 亿元匠心打造,占地面积约 4.95 公顷(相当于 7 个标准足球场)。项目以新建艺术中心、景观人行天桥为核心,匠心打磨园林景观与文化设施,生动呈现雅安古八景文化脉络。通过特色文化展演与文旅消费场景营造,将生态游憩、商业消费、文化体验三维融合,激活城市新业态发展动能,如今已成为引燃城市活力的高品质公共空间与市民新生活方式体验地。
其中,由雅安文旅集团旗下专业子公司与口袋屋强强联手打造的 “口袋屋 x 熊猫运动梦工场”,顺利落地四川首座形象旗舰店,以创新业态为雅安文旅融合注入全新活力。

本项目的核心亮点在于双 IP 萌趣天团的跨次元联动 —— 口袋屋的澳洲国宝袋鼠 "DODO" 与 "ONEAL",携手雅安城市形象 IP 大熊猫 "雅雅"、" 安安 ",组成活力四射的运动探险家联盟。这组兼具萌态与挑战精神的 IP 伙伴,不仅是场馆的视觉符号,更化身空间叙事主角:在主题场景中,袋鼠的弹跳基因与熊猫的攀爬天赋被转化为互动装置设计,游客可跟随 IP 角色的探险足迹,解锁" 丛林穿越 "、"勇者之跃" 等沉浸式关卡。
双 IP 的基因融合让场馆成为可感知的故事空间:澳大利亚草原元素与熊猫故乡生态通过艺术装置巧妙衔接,萌宠 IP 的动态形象贯穿于导视系统、设备外观及互动屏显,甚至在定制化游乐设备项目中,游客能与 IP 角色进行 AR 合影或任务挑战。这种深度 IP 植入不仅创造了高频打卡点,更通过情感化设计构建起 "游玩 - 记忆 - 复玩" 的体验闭环,数据显示 IP 主题区域的游客停留时间提升 40%,二次消费转化率显著增强。
作为口袋屋 EPC+O 品牌联名的标杆案例,项目从概念设计阶段就植入 IP 运营思维:工程团队将双 IP 形象转化为结构美学元素(如熊猫造型的攀爬架、袋鼠肌理的蹦床面),设备供应环节定制专属 IP 配件,施工建设中实现艺术装置与安全设施的一体化落地,运营端开发 IP 主题活动体系。这种全链条 IP 赋能模式,让商业空间成为承载文化记忆的情感载体。
三、项目设计

【项目建造前场地情况】
口袋屋 x 熊猫运动梦工场呈现独特的扇形立体空间结构 —— 三层场馆沿扇形弧度分布于场地两侧,每层 4.2-4.5 米的层高与近 14 米的中央通高区域,形成极具挑战的垂直空间关系。三层区域仅通过两组内部楼梯实现纵向串联,而扇形场地的斜向边界与非对称轮廓,进一步加剧了空间规划的复杂性。
这种特殊的建筑形态带来双重设计挑战:一方面,如何在 14 米通高的中央区域构建高低空项目的联动体系,让三层空间在垂直维度产生有机互动;另一方面,面对扇形场地中大量斜向墙面与锐角区域,如何通过功能布局实现 90% 以上的空间利用率。特别是当三层区域彼此隔离时,如何通过动线设计打破空间割裂感,成为贯穿整个设计过程的核心难题。

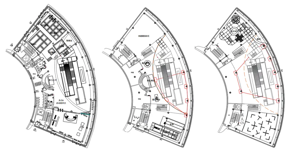
【总平面规划图】
挑空区域以场地原生立柱为骨架,构建双层高空拓展矩阵与滑索系统,在盘活建筑结构的同时,形成兼具视觉地标与客流引力的双效节点。入口处的尖叫滑梯组合以未来感造型与高饱和色彩构成强视觉锚点,尚未体验已能点燃挑战欲;10 米高的多层立体迷宫从地面螺旋攀升,贯穿二层综合体能区与三层 TAG 竞技区,玩家登顶后可选择 12 米高空速降或超高滑桶垂直着陆 —— 这两项极限挑战项目以重力加速度制造肾上腺素飙升的快感,成为玩家勇气试炼的标志性符号。
低空区域则构建多元体验矩阵:真人镭射CS 与 TAG 竞技区用光影科技打造沉浸式对战场景,活力蹦床群与综合体能区延续经典蹦床公园的运动基因,而保龄球与数字运动设备的植入,则让传统休闲项目焕发科技互动魅力。这种动静结合的业态组合,通过年龄分层设计与场景化布局,为亲子家庭、青少年群体乃至成年玩家提供全维度的游玩选择。

【平面功能分区图】
场馆科学规划十大功能分区:综合服务区以清晰导视系统构建便捷接待枢纽;攀岩竞技区打造专业竞速赛道;尖叫滑梯区以特色造型滑道组合形成视觉焦点;拓展挑战区依托挑空立柱打造双层高空探险矩阵;活力蹦床区设计多维弹跳面。
数字运动区通过技术手段重构保龄球、互动篮球等项目;综合体能区规划障碍训练系统;TAG 竞技区打造科技对战空间;真人 CS 镭战区构建沉浸式战??;休息区 & 派对房提供亲子休憩与社交聚会场景。
这种分区通过”休闲+运动+娱乐“的设计逻辑,让不同年龄段玩家快速锁定兴趣区域,形成不同体验的闭环,更通过功能区块的协同布局,使运营人员实现跨区域高效监管,相较传统布局节省 20% 人力成本,兼顾体验舒适度与商业运营效率。



【项目设计效果图】
当多巴胺色彩美学碰撞熊猫 IP 的萌趣基因,一场关于运动与欢乐的空间革命正在发生??诖?x 熊猫运动梦工场以「高饱和亮色矩阵」的”多巴胺“风格构建视觉磁场,明快的色彩笔触如跳动的活力音符,在空间中谱写出激发肾上腺素的运动序曲。雅安城市吉祥物「雅雅、安安」和口袋屋萌宠「DODO、ONEAL」以 IP 联名艺术装置形态融入场景,让憨态可掬的熊猫元素与自然光影交织,筑就兼具清新质感与潮玩氛围的沉浸式室内运动乐园。
这不仅是物理空间的创新,更是全龄社交生态的重构:运动与娱乐的碰撞、科技与竞技的融合、亲子互动与网红社交的共生在此达成平衡。无论是挑战极限运动的热血青年、探索科技互动的好奇孩童,还是享受亲子时光的家庭客群,都能在蹦床竞技区、VR 探险空间、亲子闯关赛道等多元场景中,解锁解压玩乐、社交聚会与情感联结的 N 种可能。当家长与孩子共同穿梭于萌趣熊猫主题的互动装置间,每一次欢笑都是镌刻时光的温馨印记 —— 这里不仅是释放活力的运动乌托邦,更将成为城市家庭创造共同记忆的幸福坐标。
四、施工落地
项目从施工到验收总计 60 天工期,团队通过科学调度实现高效建设。由于涉及到大量交叉施工作业,口袋屋安装团队与工程、装修团队根据现场情况协调作业,采用同步施工或错峰施工相结合的方式,在确保安全的前提下最大化利用施工空间和时间,整体建设进度较原计划缩短 10%??诖莨こ唐分释哦釉诠こ探ㄉ枞套こ〖喙?,严格执行行业安全标准,对施工细节逐一复尺核对,每日按任务计划高效推进,确保项目高品质交付。为保障乐园产品质量与游玩安全,工程交付验收阶段执行严格的检查流程,对每一项细节进行精准把控。

【工程施工】
口袋屋用自己的设备交付验收标准和要求,构建起全流程品质管控闭环:
黄金四维自检:项目经理带领技术团队依据《项目自检表》,对每项设备开展强度(静态载荷测试)、安全(防坠?;つD猓?、可玩性(人体工学体验)、工艺(接缝精度检测)四大维度验收,单项目平均通过10余项指标检查;
可视化安全指引:为每个项目定制图文并茂的《安全守则》和《入场安全须知》,从玩家身高/体重限制到动作规范均配示意图和视频,并在入口处播放;
体系化培训:开展涵盖功能玩法讲解、设备操作规范(含应急演练)、日常维保标准的系统化培训,运维团队需通过实操考核方可上岗;
双向确认机制:最终通过设备运行全流程模拟验收后,双方签署包含多项核心条款的《项目验收确认单》,完成从建设到运营的专业交接。
这种将极其严苛的检验验收标准植入室内乐园场景的全链条服务模式,让每个设备不仅是游玩载体,更成为经得起时间检验的安全艺术品。
五、项目实拍呈现
六、项目评价
2024年9月28日,雅安市首家亲子运动中心--熊猫运动梦工场在熊猫绿岛商业街区闪耀登场正式开业!开业庆典活动由雅安文旅集团党委书记、董事长肖永昌主持,雅安蜀天新城开发建设有限责任公司副总经理杨世良、雅安新奥体育发展有限公司副总经理柯潇潇受邀参加。现场热闹非凡,众多家庭带着孩子前来参与体验。
”通过引入 口袋屋 成熟运营经验与高品质的设备体验,既助力了市民身体素质的提升,又以 “运动 + 娱乐 + 科技” 的复合模式激活城市休闲消费场景,为雅安体育产业创新发展注入强劲动力。此次合作充分彰显了国企资源整合优势与品牌企业专业赋能的协同效应,对推动地方体育产业升级、完善城市公共服务功能具有显著的示范意义?!?br/>
— —雅安市国资委在相关的报道中给予该项目高度的评价(源文链接:雅安市政府国有资产监督管理委员会官网“熊猫运动梦工场”开业啦!)

关于口袋屋

口袋屋作为国内知名的运动乐园设备厂家和室内乐加盟品牌,专注于一站式商业乐园建造服务,目前口袋屋已在全球建造超1000+场馆案例,拥有丰富的场馆规划设计,设备生产制造、场馆装修及安装交付、场馆运营管理的实战经验??诖荼?quot;为客户场馆盈利"的商业逻辑,用“省心省力一站式"的服务准则,为客户的商业乐园盈利提供最快捷高效的服务,如果您想了解更多关于我们的信息,可以扫描图中二维码,期待与您相遇。















